1. Home
  2. Search Listings
  3. 12501 Sw 236th St Homestead, FL - 33032-2628
  • MLS® #: A11500621
  • 12501 Sw 236th St
  • Homestead, FL 33032-2628
  • $14,880,000
  • 6.87 Acres
  • Land

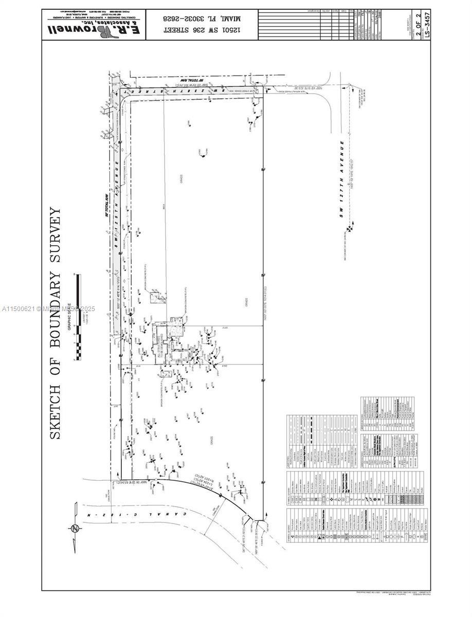
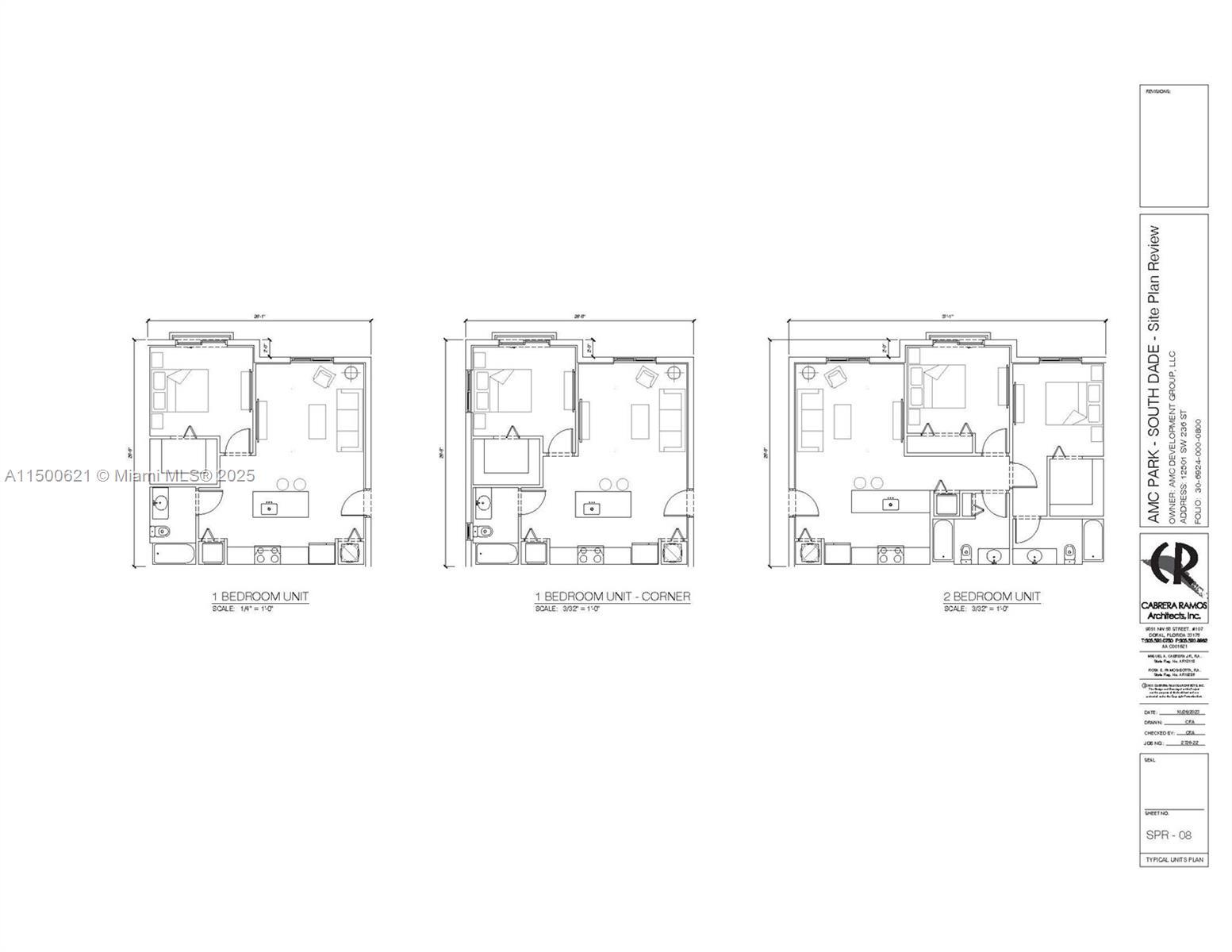
CDMP /Zoning application ALREADY APPROVED FOR HIGH DENSITY APARTMENT HOUSING DISTRICT; RU-4 MAXIMUM DENSITY PERMITTED (50 DU/ACRE). Site plan consists of six (6) multi-family apt blds, 84 UNITS (1BD)/164 UNITS (2BD), that are 3-story height, 248 workforce housing dwelling units arrayed around the periphery of the property, 370 surface parking spaces in the center, amenities such as a swimming pool, playground, pedestrian walking paths, mail kiosks, bicycle racks and landscaped common open areas. The site plan also depicts the dedication of SW 125 Ave and SW 236 Street which provide public access to the site. The development will have two ingress-egress vehicular and pedestrian access along SW 125 Avenue and SW 236 Street.

View Virtual Tour

Essential Information

  • MLS® #A11500621
  • Price$14,880,000
  • CAD Dollar$20,911,608
  • UK Pound£11,318,472
  • Euro€12,828,643
  • Bathrooms0.00
  • Acres6.87
  • TypeLand
  • Sub-TypeResidential
  • StatusActive

Community Information

  • Address12501 Sw 236th St
  • Area69
  • SubdivisionNONE
  • CityHomestead
  • CountyMiami-Dade
  • StateFL
  • Zip Code33032-2628

Amenities

  • ViewCanal
  • Is WaterfrontYes
  • WaterfrontCanal Front
  • Office: The Katsikos Group, Inc.

Property Location

Please provide a valid email address.

12501 Sw 236th St on www.w.jupiteroceanfrontcondos.us

Offered at the current list price of $14,880,000, this home for sale at 12501 Sw 236th St features 0 bedrooms and 0 bathrooms. This real estate listing is located in NONE of Homestead, FL 33032-2628 . 12501 Sw 236th St is listed under the MLS ID of A11500621 and has been on the Homestead real estate market for 679 days.

The data relating to real estate on this web site comes in part from the Internet Data Exchange program of the MLS of the REALTOR® Association of Greater Miami and the Beaches, and is updated as of November 1st, 2025 at 7:05am CDT (date/time).

All information is deemed reliable but not guaranteed by the MLS and should be independently verified. All properties are subject to prior sale, change, or withdrawal. Neither listing broker(s) nor Waterfront Properties and Club Communities shall be responsible for any typographical errors, misinformation, or misprints, and shall be held totally harmless from any damages arising from reliance upon these data. © 2025 MLS of RAMB.

The information being provided is for consumers' personal, non-commercial use and may not be used for any purpose other than to identify prospective properties consumers may be interested in purchasing