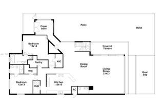
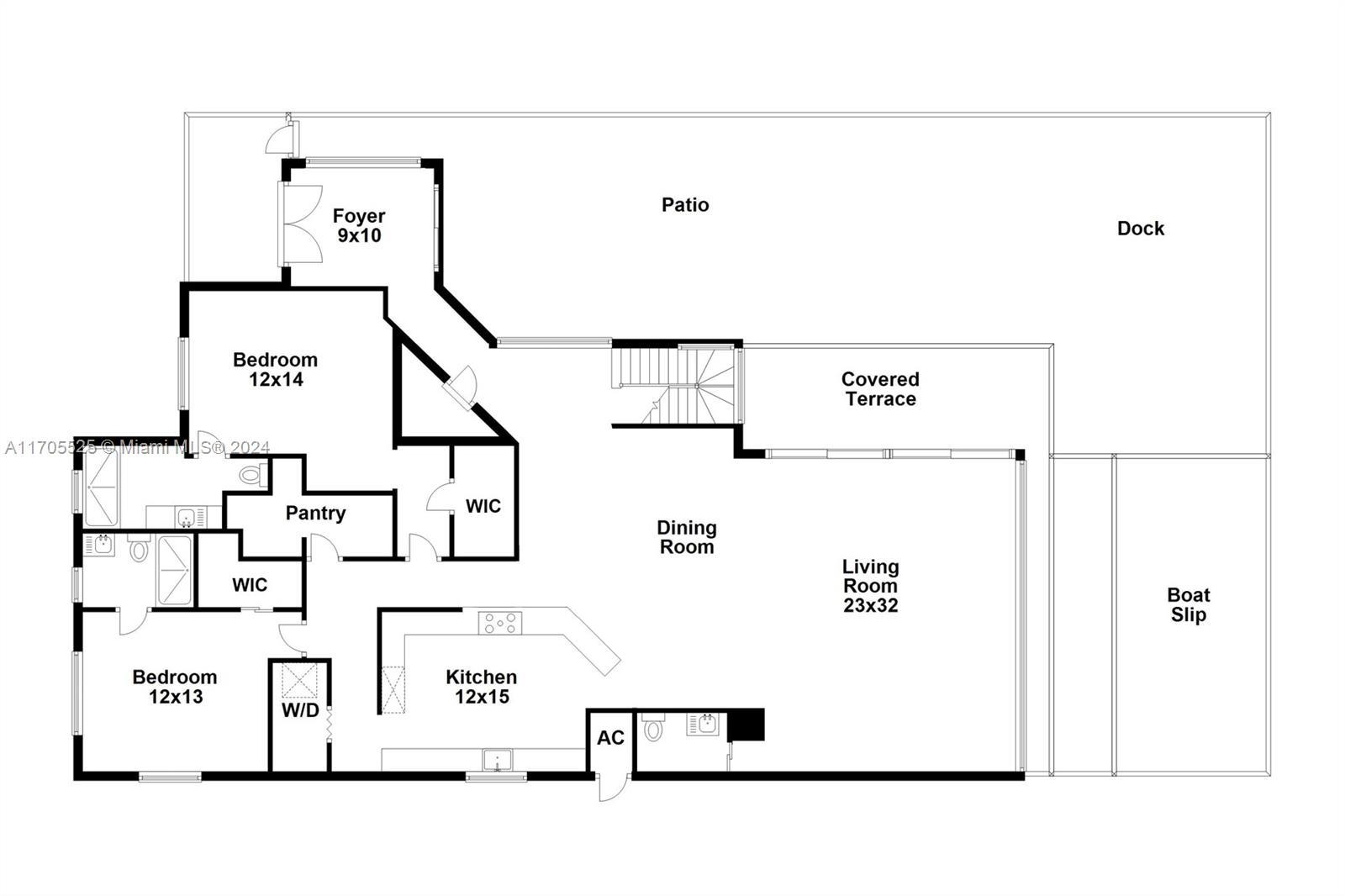
With no bridges to the Bay, this newly-renovated home on exclusive Rockerman Road is a boater’s paradise w/ 6 BRs & 4.5 BAs spanning 3,517 SF on a 7,053 SF lot w/ 61’ on the water. The open kitchen features new appliances & freshly-painted cabinets. The living & dining areas have lovely views of the water & Kennedy Park across the way. There are also 2 BRs w/ en-suite baths on the 1st floor, 1 of which could be the primary suite. The primary suite is located privately on the 3rd floor & includes 2 walk-in closets, BA w/ dual vanities, & separate tub & shower. The 4th level rooftop terrace enjoys gorgeous vistas! New roof, new impact glass windows & doors, new seawall & dock w/ lift, renovated BAs, easy bay access, all conveniently close to downtown Coconut Grove & downtown Miami!
View Virtual TourCable Available, Electricity Available, Sewer Available, Trash Collection, Water Available
Each winter during Carnaval Miami, salsa tunes blare and the smell of spicy chorizo fills the air on Calle Ocho, the commercial thoroughfare and heart of Miami's Little Havana. The roaring street festival, which culminates in the world's longest conga line, is the last of 10 events comprising the Latin-spiked Carnaval.
 
		 
		 
		 
		The data relating to real estate on this web site comes in part from the Internet Data Exchange program of the MLS of the REALTOR® Association of Greater Miami and the Beaches, and is updated as of October 31st, 2025 at 10:34am CDT (date/time).
All information is deemed reliable but not guaranteed by the MLS and should be independently verified. All properties are subject to prior sale, change, or withdrawal. Neither listing broker(s) nor Waterfront Properties and Club Communities shall be responsible for any typographical errors, misinformation, or misprints, and shall be held totally harmless from any damages arising from reliance upon these data. © 2025 MLS of RAMB.
The information being provided is for consumers' personal, non-commercial use and may not be used for any purpose other than to identify prospective properties consumers may be interested in purchasing