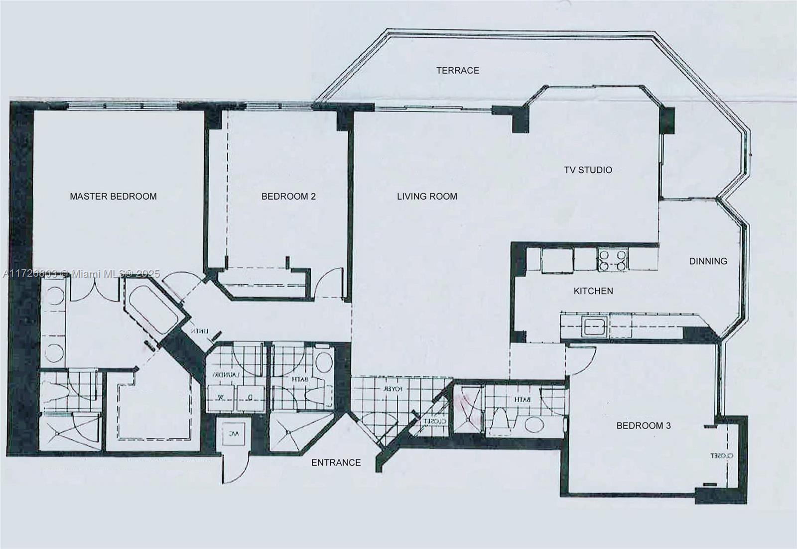
Best of the Best 3/3 corner unit with stunning 270 degree view of an open bay no obstructions. Enjoy water views from the moment you open the door and in all the rooms, wrap-around balcony. Best Line in the entire building that rarely is for sale. Extremely well maintain and ready to move in. Master bedroom ease can be converted to a Master suite. Amenities include: Fitness Center, Spa, Sauna, Head Swimming Pool, Hot Bub, Tennis Courts, Club House and Marina. AMAZING LOCATION IN THE HEART OF AVENTURA CLOSE TO THE BEACH, AVENTURA MALL, RESTAURANTS, TO COLLINS AVE WHERE IT IS A HOT CORRIDOR OF HIGH END BUILDINGS, A+SCHOOLS
View Virtual TourClubhouse, Fitness Center, Playground, Guard
Fitness, Other, Property Manager On-Site, Game Room
Ocean Front, Bay Front, Intracoastal Access, Other
Dryer, Dishwasher, Electric Range, Microwave, Refrigerator, Self Cleaning Oven, Washer
Balcony, Barbecue, Tennis Court(s)
 
		 
		 
		 
		The data relating to real estate on this web site comes in part from the Internet Data Exchange program of the MLS of the REALTOR® Association of Greater Miami and the Beaches, and is updated as of October 31st, 2025 at 12:36am CDT (date/time).
All information is deemed reliable but not guaranteed by the MLS and should be independently verified. All properties are subject to prior sale, change, or withdrawal. Neither listing broker(s) nor Waterfront Properties and Club Communities shall be responsible for any typographical errors, misinformation, or misprints, and shall be held totally harmless from any damages arising from reliance upon these data. © 2025 MLS of RAMB.
The information being provided is for consumers' personal, non-commercial use and may not be used for any purpose other than to identify prospective properties consumers may be interested in purchasing