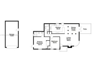
An exquisite 2-bedroom, 2-bathroom Art Deco residence in Coral Gables showcases an inviting open floor plan with original architectural details, including a charming fireplace with a stone mantle & a distinctive wrought-iron palm motif front door. Hardwood floors run throughout, adding warmth & character to every room.The spacious kitchen offers dual sinks, ample cabinetry & striking granite countertops—perfect for those who love to cook, entertain, or enjoy daily living with style.Both bedrooms are generously sized, offering comfort & privacy. Outdoor highlights include a generous side patio, open green space & a detached 1-car garage, providing flexibility for storage or parking.This timeless home blends classic charm & modern comfort in one of Coral Gables’ most desirable neighborhoods.
View Virtual TourBuilt-In Oven, Dryer, Dishwasher, Electric Water Heater, Microwave, Refrigerator, Self Cleaning Oven, Washer
 
		 
		 
		 
		The data relating to real estate on this web site comes in part from the Internet Data Exchange program of the MLS of the REALTOR® Association of Greater Miami and the Beaches, and is updated as of October 30th, 2025 at 7:30pm CDT (date/time).
All information is deemed reliable but not guaranteed by the MLS and should be independently verified. All properties are subject to prior sale, change, or withdrawal. Neither listing broker(s) nor Waterfront Properties and Club Communities shall be responsible for any typographical errors, misinformation, or misprints, and shall be held totally harmless from any damages arising from reliance upon these data. © 2025 MLS of RAMB.
The information being provided is for consumers' personal, non-commercial use and may not be used for any purpose other than to identify prospective properties consumers may be interested in purchasing