1. Home
  2. Search Listings
  3. 325 Cameron Dr Weston, FL - 33326-3516
  • MLS® #: A11833928
  • 325 Cameron Dr
  • Weston, FL 33326-3516
  • $939,000
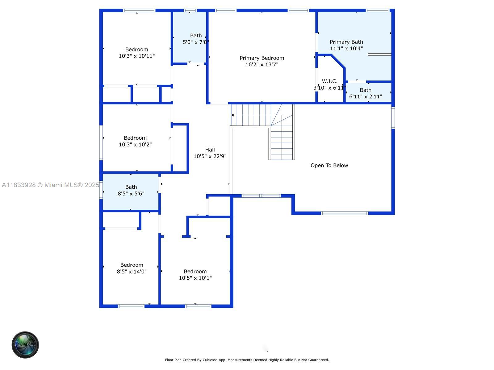
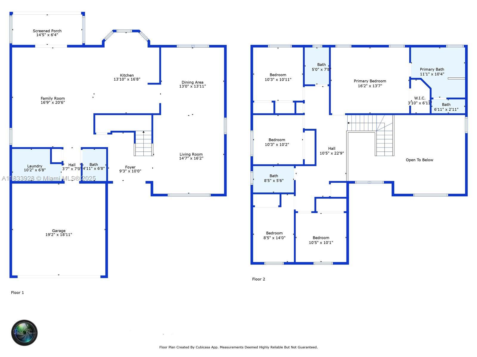
  • 5 Beds, 4 Bath, 2,730 SqFt
  • Residential

NEW IMPACT WINDOWS & DOORS, NEWER ROOF(2018)! Beautifully updated 5-bedroom +loft, 3.5 Bathroom, 2 Car Garage lakefront home featuring all freshly painted interior, & a spacious backyard w/ mature trees w/ more than enough room for a pool. The kitchen boasts granite counter tops as well as dual-tone wood cabinets, custom hood, & stainless appliances. A/C (2022), water heater (2021), solar patio screens, remodeled bathrooms & an enclosed Impact Glass Sunroom that offers serene lake views & seamless indoor-outdoor living. The primary bath has travertine, wood cabinetry, dual sinks, & a rainfall shower. A wonderful opportunity to live in the highly desired community of The Lakes offering a clubhouse + pool, close to A+ schools. RARE VALUE FOR A TRUE 5 BEDROOM HOME ON THE LAKE IN THE LAKES!

View Virtual Tour

Essential Information

  • MLS® #A11833928
  • Price$939,000
  • CAD Dollar$1,301,524
  • UK Pound£697,452
  • Euro€803,940
  • HOA Fees200
  • Bedrooms5
  • Bathrooms4.00
  • Full Baths3
  • Half Baths1
  • Square Footage2,730
  • Year Built1993
  • TypeResidential
  • Sub-TypeSingle Family Residence
  • StyleDetached, Two Story
  • StatusActive Under Contract

Community Information

  • Address325 Cameron Dr
  • Area3890
  • SubdivisionThe Lakes
  • CityWeston
  • CountyBroward
  • StateFL
  • Zip Code33326-3516

Amenities

  • UtilitiesCable Available
  • FeaturesPool
  • ParkingDriveway
  • # of Garages2
  • GaragesGarage Door Opener
  • ViewLake, Water
  • Is WaterfrontYes
  • WaterfrontLake Front
  • Pets AllowedDogsOk,Yes

Interior

  • HeatingCentral, Electric
  • CoolingCentral Air, Ceiling Fan(s)
  • # of Stories2
  • StoriesTwo

Interior

Carpet, Ceramic Tile, Laminate, Tile

Appliances

Dryer, Dishwasher, Electric Range, Microwave, Other, Refrigerator, Washer

Exterior

  • WindowsBlinds, Impact Glass
  • RoofSpanish Tile
  • ConstructionBlock

Exterior Features

Enclosed Porch, Security/High Impact Doors, Lighting, Patio, Room For Pool, Shed

School Information

  • ElementaryEagle Point
  • MiddleTequesta Trace
  • HighCypress Bay
  • Office: Keller Williams Legacy

Property Location

Please provide a valid email address.

325 Cameron Dr on www.w.jupiteroceanfrontcondos.us

Offered at the current list price of $939,000, this home for sale at 325 Cameron Dr features 5 bedrooms and 4 bathrooms. This real estate listing is located in The Lakes of Weston, FL 33326-3516 and is approximately 2,730 square feet. 325 Cameron Dr is listed under the MLS ID of A11833928 and has been on the Weston real estate market for 152 days.

Similar Listings to 325 Cameron Dr

Photo of Listing #A11767575
  • MLS® #: A11767575
  • 1107 Fairfield Meadows Dr
  • Weston, FL 33327-1813
  • $815,000
  • 4 Bed, 3 Bath, 1,942 SqFt
  • Residential
Add as Favorite
Photo of Listing #A11810868
  • MLS® #: A11810868
  • 1357 Camellia Ln
  • Weston, FL 33326-3620
  • $839,000
  • 4 Bed, 3 Bath, 2,151 SqFt
  • Residential
Add as Favorite
Photo of Listing #A11764037
  • MLS® #: A11764037
  • 624 Stanton Dr
  • Weston, FL 33326-3591
  • $849,000
  • 4 Bed, 4 Bath, 2,012 SqFt
  • Residential
Add as Favorite
Photo of Listing #A11853238
  • MLS® #: A11853238
  • 19138 Stonebrook St
  • Weston, FL 33332-2424
  • $896,350
  • 4 Bed, 2 Bath, 2,172 SqFt
  • Residential
Add as Favorite

The data relating to real estate on this web site comes in part from the Internet Data Exchange program of the MLS of the REALTOR® Association of Greater Miami and the Beaches, and is updated as of January 8th, 2026 at 2:45am CST (date/time).

All information is deemed reliable but not guaranteed by the MLS and should be independently verified. All properties are subject to prior sale, change, or withdrawal. Neither listing broker(s) nor Waterfront Properties and Club Communities shall be responsible for any typographical errors, misinformation, or misprints, and shall be held totally harmless from any damages arising from reliance upon these data. © 2026 MLS of RAMB.

The information being provided is for consumers' personal, non-commercial use and may not be used for any purpose other than to identify prospective properties consumers may be interested in purchasing