1. Home
  2. Search Listings
  3. Ne 149 Miami, FL - 33161-0000
  • MLS® #: A11844753
  • Ne 149
  • Miami, FL 33161-0000
  • $699,000
  • 0.21 Acres
  • Land

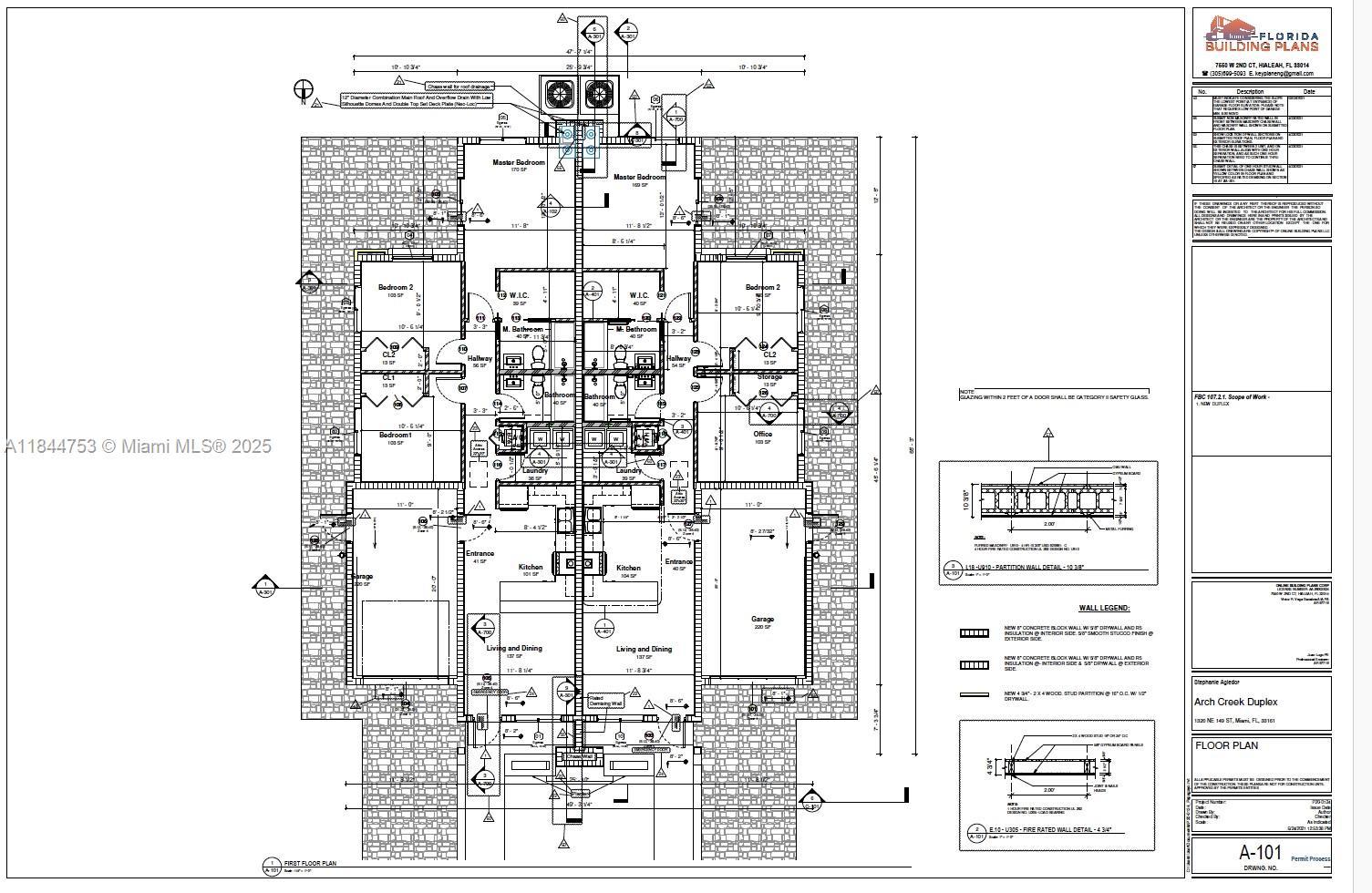
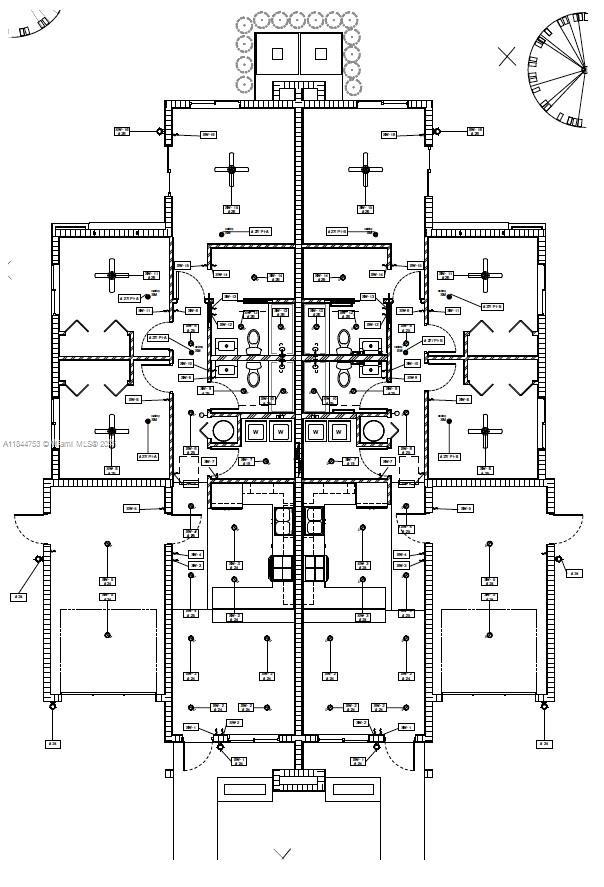
Lot is cleared and shovel ready. All Arch plans, surveys, soil test, septic plans, and HOA documents included in the purchase. The plans is for TWINHOMES . 2- 3/2 with a 1 car garage. Great location. Centrally located within the city limits of North Miami, NMB, and Aventura, 10 minutes from the mega Aventura mall, beaches, colleges near by: FIU, St. Thomas, Florida Memorial, Johnson and Wales, Hard Rock stadium, and the very popular Costco. Hot location, not many vacant land left in the area. New future train station location on Biscayne Blvd will make this investment a game changer! All the heavy lifting is complete!

View Virtual Tour

Essential Information

  • MLS® #A11844753
  • Price$699,000
  • CAD Dollar$952,353
  • UK Pound£510,517
  • Euro€589,688
  • Bathrooms0.00
  • Acres0.21
  • TypeLand
  • Sub-TypeResidential
  • StatusActive

Community Information

  • AddressNe 149
  • Area22
  • SubdivisionARCH CREEKS ESTATES
  • CityMiami
  • CountyMiami-Dade
  • StateFL
  • Zip Code33161-0000

Amenities

  • UtilitiesWater Not Available
  • Office: Vylla Home

Property Location

Please provide a valid email address.

Ne 149 on www.w.jupiteroceanfrontcondos.us

Offered at the current list price of $699,000, this home for sale at Ne 149 features 0 bedrooms and 0 bathrooms. This real estate listing is located in ARCH CREEKS ESTATES of Miami, FL 33161-0000 . Ne 149 is listed under the MLS ID of A11844753 and has been on the Miami real estate market for 171 days.

Facts About Miami, FL

Each winter during Carnaval Miami, salsa tunes blare and the smell of spicy chorizo fills the air on Calle Ocho, the commercial thoroughfare and heart of Miami's Little Havana. The roaring street festival, which culminates in the world's longest conga line, is the last of 10 events comprising the Latin-spiked Carnaval.

Similar Listings to Ne 149

Photo of Listing #A10979914
  • MLS® #: A10979914
  • 10356 Sw 178th St
  • Miami, FL 33157
  • $750,000
  • 0.33 Acres
  • Land
Add as Favorite
Photo of Listing #A11656112
  • MLS® #: A11656112
  • 22409 207
  • Miami, FL 33170-0000
  • $749,000
  • 5 Acres
  • Land
Add as Favorite
Photo of Listing #A11687747
  • MLS® #: A11687747
  • N/a
  • Miami, FL 33145-1026
  • $750,000
  • 6325 Acres
  • Land
Add as Favorite
Photo of Listing #A11701181
  • MLS® #: A11701181
  • 1624 Nw 60th St
  • Miami, FL 33142-8113
  • $599,000
  • 0.26 Acres
  • Land
Add as Favorite

The data relating to real estate on this web site comes in part from the Internet Data Exchange program of the MLS of the REALTOR® Association of Greater Miami and the Beaches, and is updated as of January 31st, 2026 at 10:01am CST (date/time).

All information is deemed reliable but not guaranteed by the MLS and should be independently verified. All properties are subject to prior sale, change, or withdrawal. Neither listing broker(s) nor Waterfront Properties and Club Communities shall be responsible for any typographical errors, misinformation, or misprints, and shall be held totally harmless from any damages arising from reliance upon these data. © 2026 MLS of RAMB.

The information being provided is for consumers' personal, non-commercial use and may not be used for any purpose other than to identify prospective properties consumers may be interested in purchasing