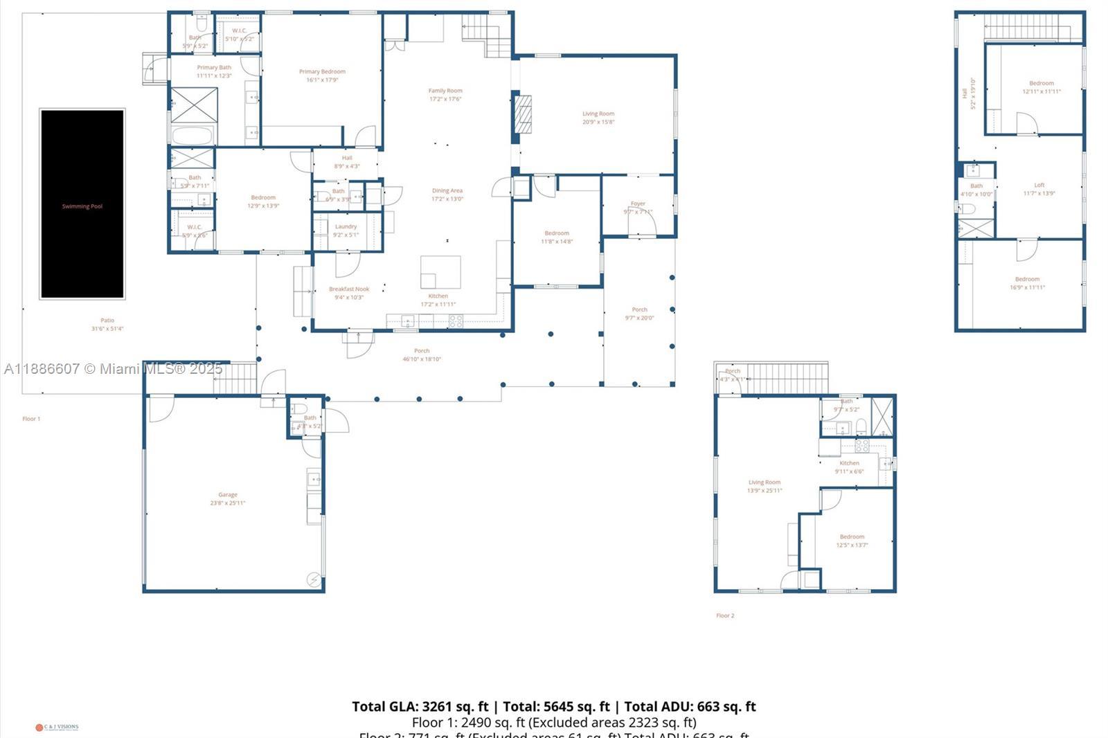
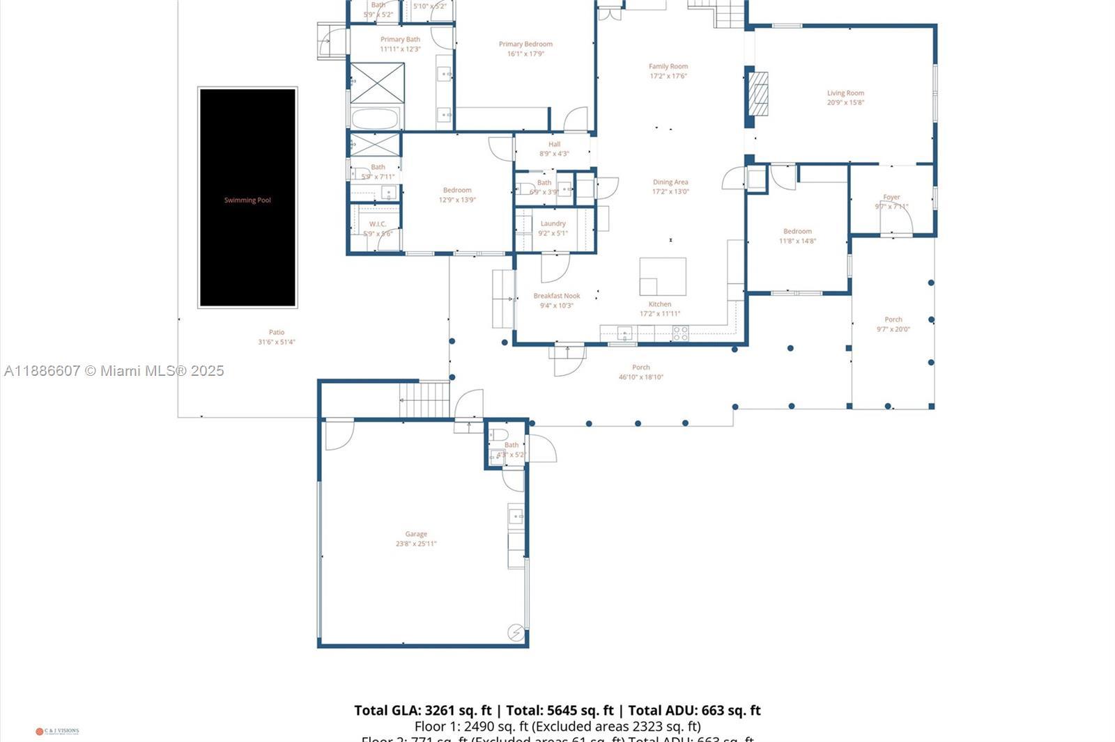
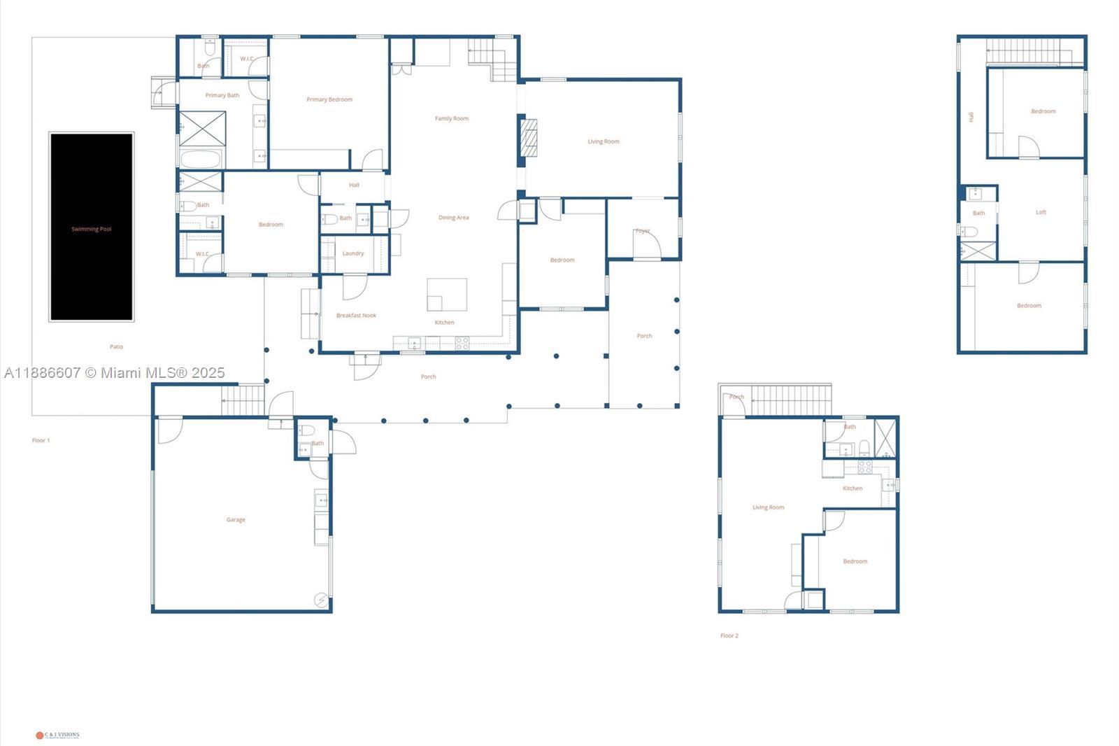
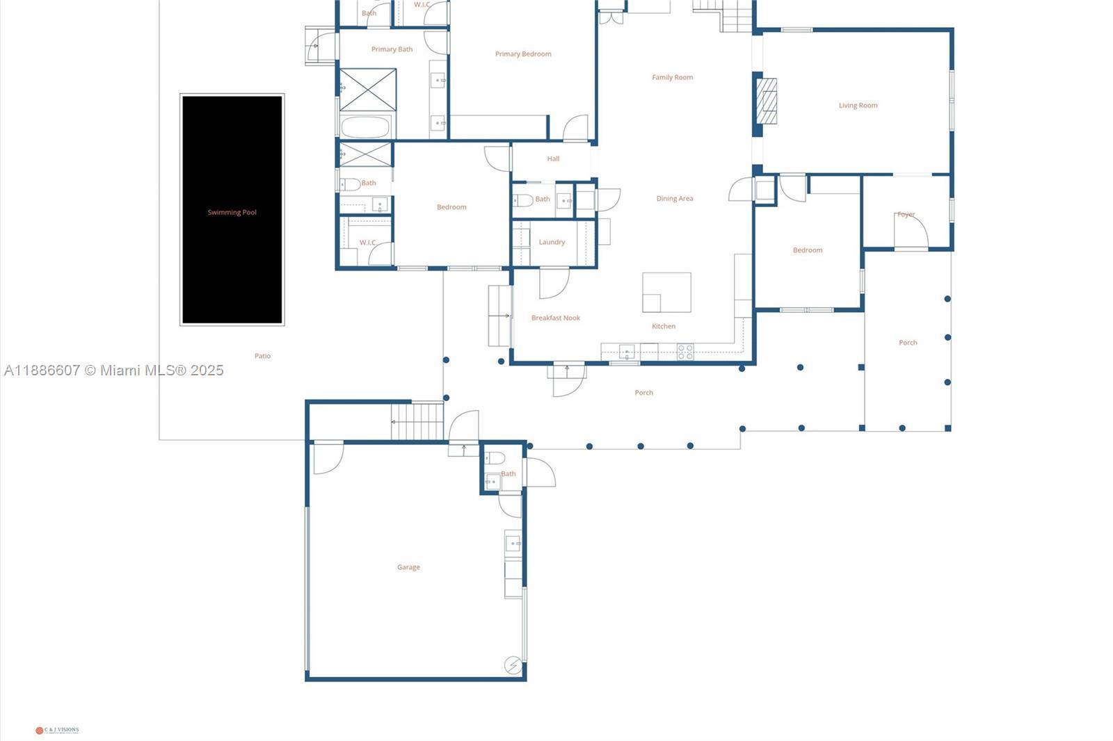
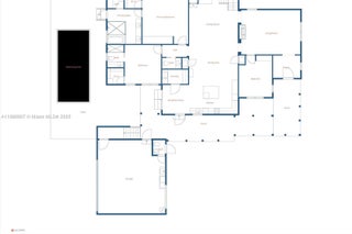
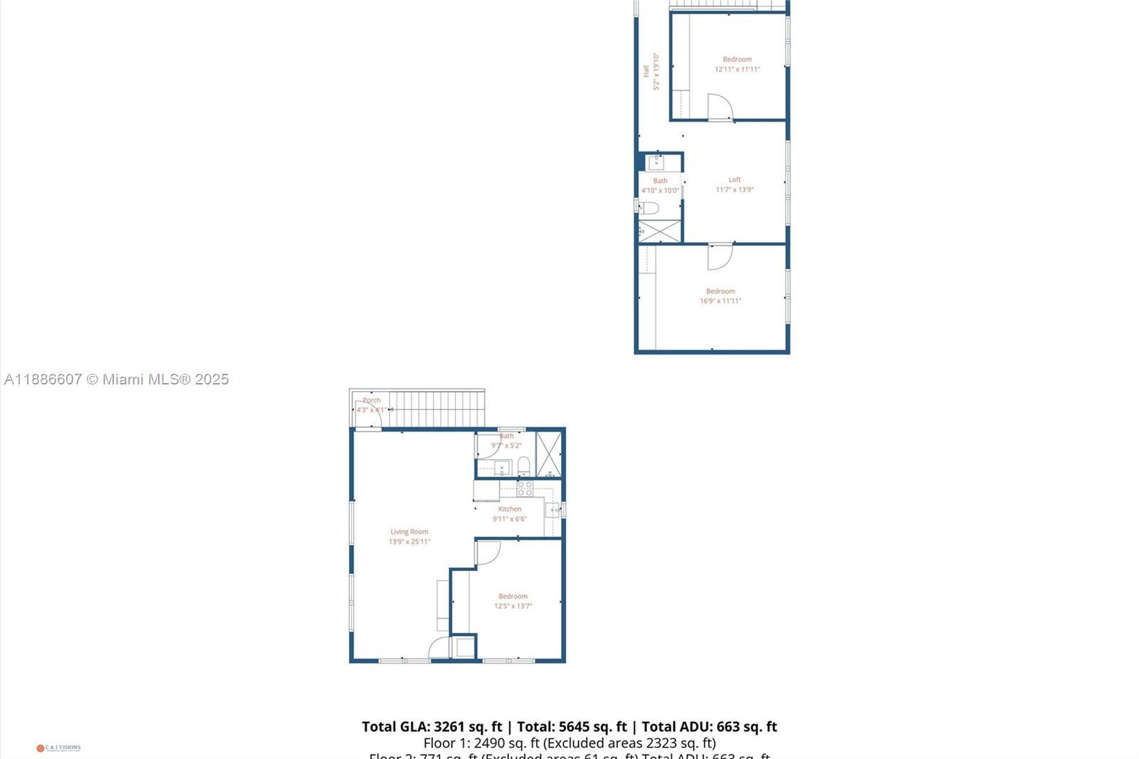
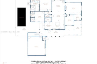
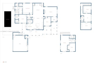
Casa Encantada is a spectacular 4,081 SF Mediterranean residence in Miami Shores featuring a 2-car garage and a 900 SF detached 1-bed, 1-bath guest house. Fully upgraded with a new roof, impact windows and doors, imported Travertine flooring, saltwater pool, new fencing, and interior/exterior surround sound, it sits on a 12,800 SF lot. The chef’s kitchen offers custom cabinetry, a large island, and high-end finishes. The main-level primary suite includes a spa-style bath. Outdoors, tiled walkways connect a resort-style pool, jacuzzi, and multiple areas for lounging and entertaining. Minutes from beaches, top schools, shopping, and dining, Casa Encantada delivers modern function with enduring Mediterranean charm.
View Virtual TourPool, Street Lights, Golf, Golf Course Community, Pickleball
Dryer, Dishwasher, Disposal, Gas Range, Microwave, Refrigerator, Washer, Some Gas Appliances
Barbecue, Deck, Fence, Security/High Impact Doors, Lighting, Porch, Patio, Fruit Trees
 
		 
		 
		 
		The data relating to real estate on this web site comes in part from the Internet Data Exchange program of the MLS of the REALTOR® Association of Greater Miami and the Beaches, and is updated as of October 30th, 2025 at 10:52pm CDT (date/time).
All information is deemed reliable but not guaranteed by the MLS and should be independently verified. All properties are subject to prior sale, change, or withdrawal. Neither listing broker(s) nor Waterfront Properties and Club Communities shall be responsible for any typographical errors, misinformation, or misprints, and shall be held totally harmless from any damages arising from reliance upon these data. © 2025 MLS of RAMB.
The information being provided is for consumers' personal, non-commercial use and may not be used for any purpose other than to identify prospective properties consumers may be interested in purchasing