1. Home
  2. Search Listings
  3. 1264 Ne 156th St North Miami Beach, FL - 33162-5538
  • MLS® #: A11915601
  • 1264 Ne 156th St
  • North Miami Beach, FL 33162-5538
  • $459,000
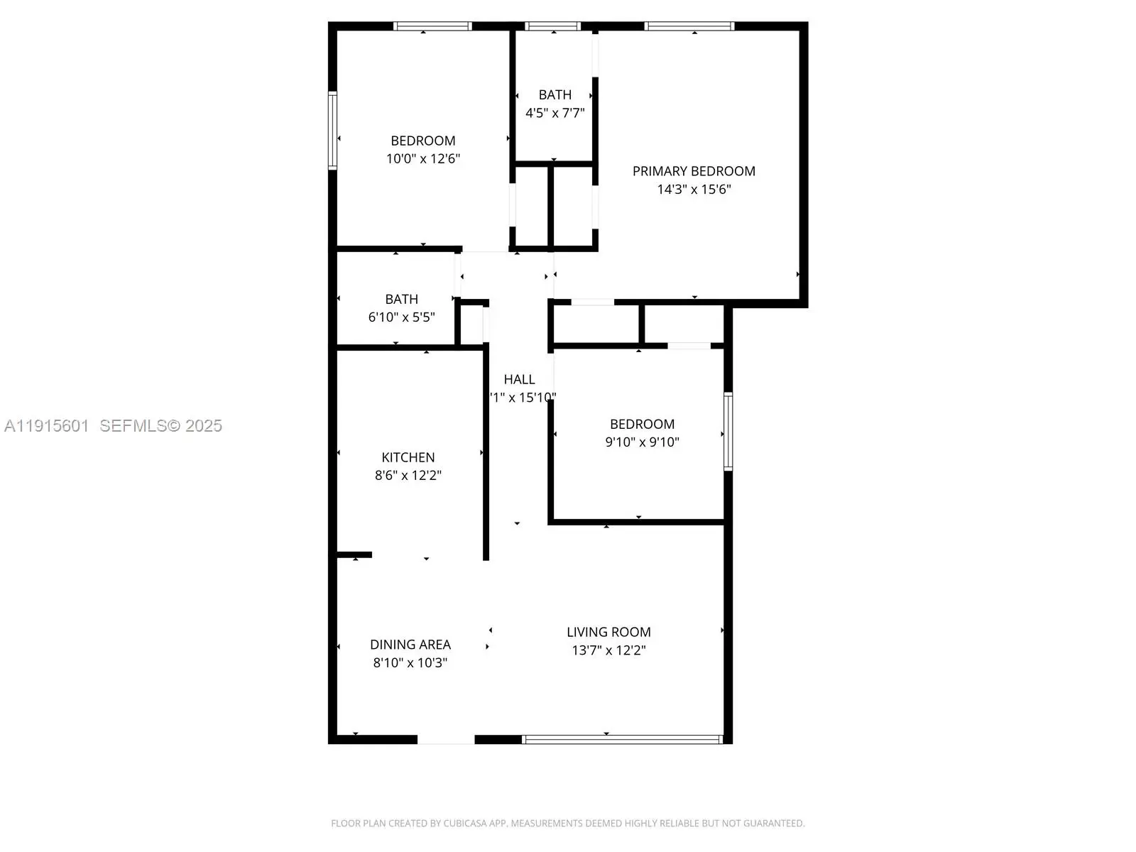
  • 4 Beds, 3 Bath, 1,442 SqFt
  • Residential

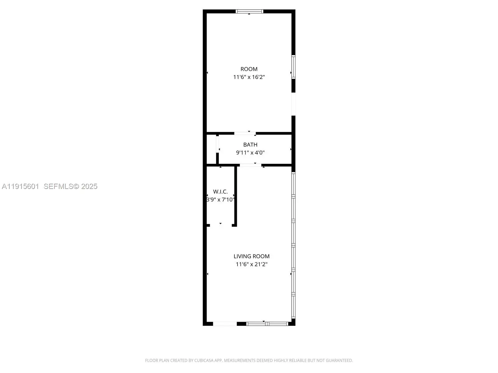
Discover a great opportunity to create the home or investment you’ve been envisioning in a fantastic North Miami location! With over 1,900 SF, this 4 BEDS & 3 BATHS (main house is a 3/2 PLUS SEPARATE 1/1 with its own private entrance) sits on a generous lot with a lovely butterfly garden and mature trees. The main home features spacious living areas, private master bedroom w/ in-suite bathroom, a galley kitchen with plenty of cabinets, great storage, and a newer fridge and stove. The additional 1/1 provides great flexibility—ideal for an in-law suite, home office, or as a rental for supplemental income. Ready to be reimagined, this property provides endless potential and is the perfect opportunity to bring your own vision and personal style to life. Centrally located near all the local shops and restaurants, and major highways. A wonderful chance. NO FLOOD INSURANCE REQUIRED. Easy to show.

View Virtual Tour

Essential Information

  • MLS® #A11915601
  • Price$459,000
  • CAD Dollar$626,250
  • UK Pound£337,182
  • Euro€387,614
  • Bedrooms4
  • Bathrooms3.00
  • Full Baths3
  • Square Footage1,442
  • Year Built1954
  • TypeResidential
  • Sub-TypeSingle Family Residence
  • StyleOne Story
  • StatusActive

Community Information

  • Address1264 Ne 156th St
  • Area22
  • SubdivisionFULFORD BY THE SEA SEC J
  • CityNorth Miami Beach
  • CountyMiami-Dade
  • StateFL
  • Zip Code33162-5538

Amenities

  • ParkingDriveway, On Street
  • ViewGarden
  • Pets AllowedNoPetRestrictions,Yes

Interior

  • InteriorTile
  • HeatingCentral, Electric
  • CoolingCentral Air, Electric
  • # of Stories1

Interior Features

Bedroom on Main Level, First Floor Entry

Appliances

Dishwasher, Electric Range, Microwave, Refrigerator

Exterior

  • Exterior FeaturesOther
  • WindowsBlinds
  • RoofOther
  • ConstructionBlock

School Information

  • ElementaryFulford
  • MiddleJohn F. Kennedy
  • Office: Keller Williams Eagle Realty
Please provide a valid email address.

1264 Ne 156th St on www.w.jupiteroceanfrontcondos.us

Offered at the current list price of $459,000, this home for sale at 1264 Ne 156th St features 4 bedrooms and 3 bathrooms. This real estate listing is located in FULFORD BY THE SEA SEC J of North Miami Beach, FL 33162-5538 and is approximately 1,442 square feet. 1264 Ne 156th St is listed under the MLS ID of A11915601 and has been on the North Miami Beach real estate market for 67 days.

Similar Listings to 1264 Ne 156th St

Photo of Listing #A11737858
  • MLS® #: A11737858
  • 2381 Ne 137 St
  • North Miami Beach, FL 33181-1841
  • $450,000
  • 1 Bed, 1 Bath, 660 SqFt
  • Residential
Add as Favorite
Photo of Listing #A11772918
  • MLS® #: A11772918
  • 16385 Biscayne Blvd Unit 1902
  • North Miami Beach, FL 33160-5474
  • $520,000
  • 1 Bed, 2 Bath, 937 SqFt
  • Residential
Add as Favorite
Photo of Listing #A11865470
  • MLS® #: A11865470
  • 1440 Ne 183rd St
  • North Miami Beach, FL 33179-4833
  • $524,000
  • 3 Bed, 2 Bath, 1,204 SqFt
  • Residential
Add as Favorite
Photo of Listing #A11909553
  • MLS® #: A11909553
  • 1077 Ne 157th Ter
  • North Miami Beach, FL 33162-5335
  • $515,000
  • 2 Bed, 1 Bath, 1,178 SqFt
  • Residential
Add as Favorite

The data relating to real estate on this web site comes in part from the Internet Data Exchange program of the MLS of the REALTOR® Association of Greater Miami and the Beaches, and is updated as of February 17th, 2026 at 6:49pm CST (date/time).

All information is deemed reliable but not guaranteed by the MLS and should be independently verified. All properties are subject to prior sale, change, or withdrawal. Neither listing broker(s) nor Waterfront Properties and Club Communities shall be responsible for any typographical errors, misinformation, or misprints, and shall be held totally harmless from any damages arising from reliance upon these data. © 2026 MLS of RAMB.

The information being provided is for consumers' personal, non-commercial use and may not be used for any purpose other than to identify prospective properties consumers may be interested in purchasing