1. Home
  2. Search Listings
  3. 2331 N State Road 7 124 Lauderhill, FL - 33313-3771
  • MLS® #: A11954475
  • 2331 N State Road 7 124
  • Lauderhill, FL 33313-3771
  • $149,900
  • Business

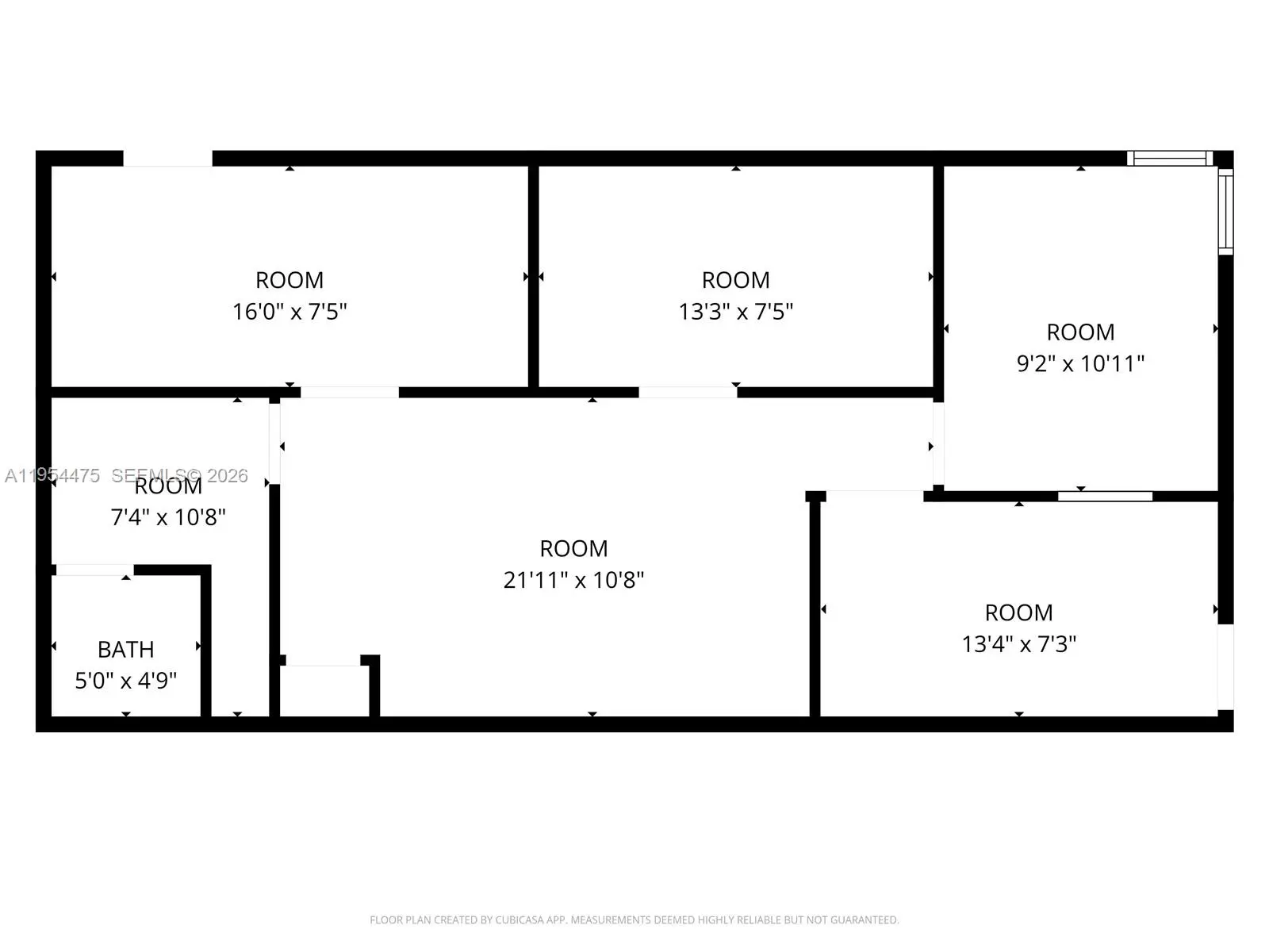
Excellent opportunity to own a 757 SF commercial condominium unit in a well-maintained condo-style plaza on N State Road 7 in Lauderhill. Property is zoned CG (Commercial General) and features a functional layout with three private office spaces, an open central area, and a private restroom. Ideal for a wide range of professional and service-based uses including office, medical-related, insurance, real estate, consulting, tutoring, wellness, or similar uses (always subject to city approval). Unit offers direct access, storefront exposure, and efficient use of space with minimal wasted square footage. Located along a major commercial corridor with strong daily traffic and convenient access to surrounding neighborhoods and main roadways. HOA in place, making this a low-maintenance option for an owner-user or small business looking to control occupancy costs instead of leasing. Rare chance to own a small-footprint commercial space in a high-demand area.

View Virtual Tour

Essential Information

  • MLS® #A11954475
  • Price$149,900
  • CAD Dollar$203,803
  • UK Pound£111,607
  • Euro€129,003
  • Bathrooms0.00
  • Year Built2006
  • TypeBusiness
  • Sub-TypeOffice
  • StatusActive

Community Information

  • Address2331 N State Road 7 124
  • Area3670
  • CityLauderhill
  • CountyBroward
  • StateFL
  • Zip Code33313-3771
  • Office: Current Capital Realty

Property Location

Please provide a valid email address.

2331 N State Road 7 124 on www.w.jupiteroceanfrontcondos.us

Offered at the current list price of $149,900, this home for sale at 2331 N State Road 7 124 features bedrooms and 0 bathrooms. This real estate listing is located in of Lauderhill, FL 33313-3771 . 2331 N State Road 7 124 is listed under the MLS ID of A11954475 and has been on the Lauderhill real estate market for 38 days.

The data relating to real estate on this web site comes in part from the Internet Data Exchange program of the MLS of the REALTOR® Association of Greater Miami and the Beaches, and is updated as of March 10th, 2026 at 8:30pm CDT (date/time).

All information is deemed reliable but not guaranteed by the MLS and should be independently verified. All properties are subject to prior sale, change, or withdrawal. Neither listing broker(s) nor Waterfront Properties and Club Communities shall be responsible for any typographical errors, misinformation, or misprints, and shall be held totally harmless from any damages arising from reliance upon these data. © 2026 MLS of RAMB.

The information being provided is for consumers' personal, non-commercial use and may not be used for any purpose other than to identify prospective properties consumers may be interested in purchasing