1. Home
  2. Search Listings
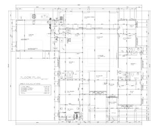
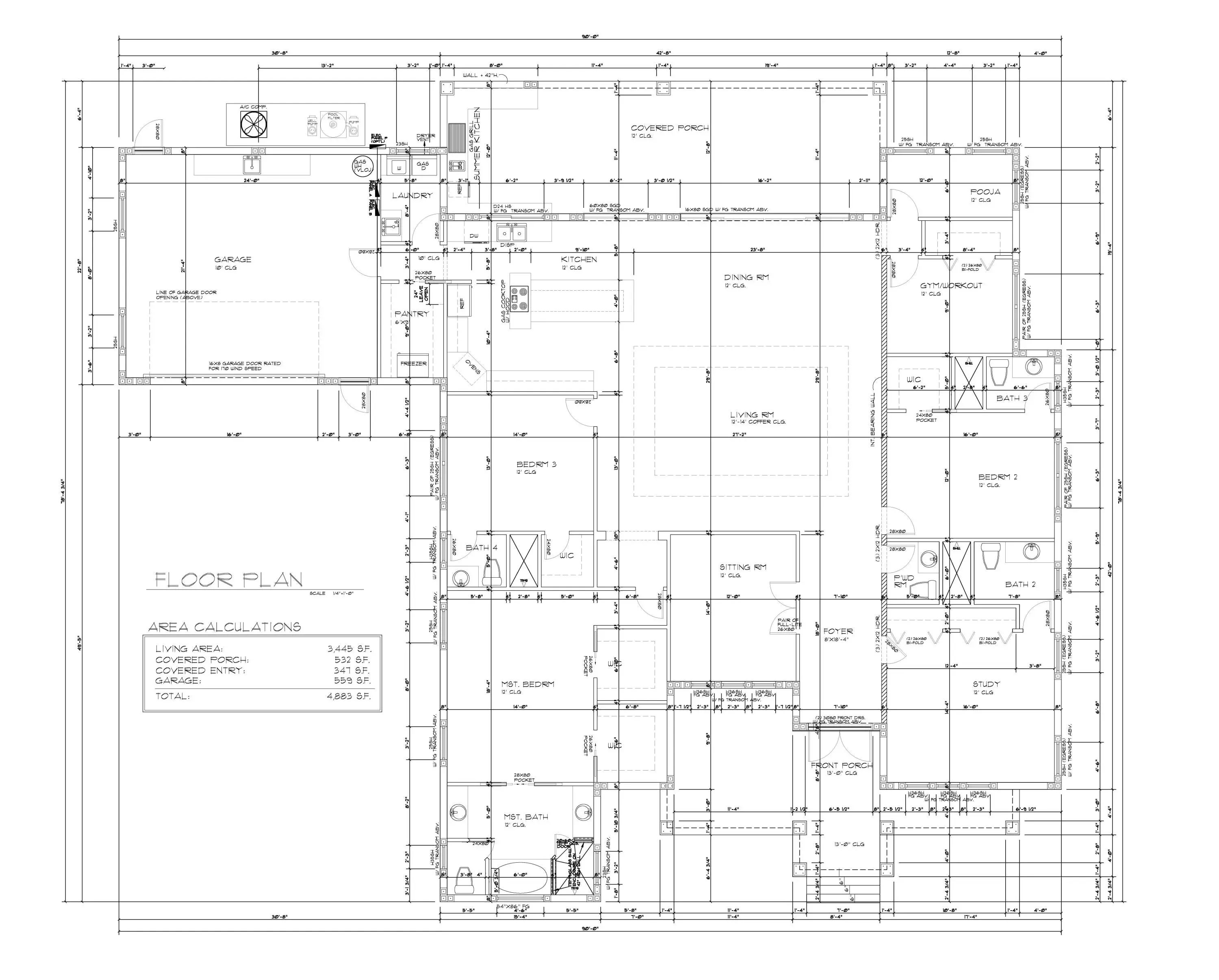
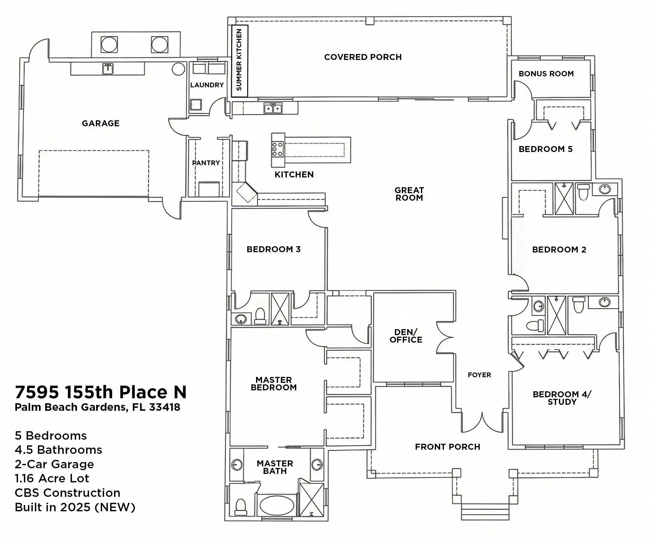
  3. 7595 155th Place N Palm Beach Gardens, FL - 33418
  • MLS® #: R11166393
  • 7595 155th Place N
  • Palm Beach Gardens, FL 33418
  • $2,552,000
  • 5 Beds, 5 Bath, 3,445 SqFt
  • Residential

This BRAND-NEW luxury CBS home located on a 1.16-acre corner lot on a paved road in Palm Beach Country Estates features 5 bedrooms plus a den, 4.5 baths, and an oversized 2-car garage. Metal roof and hurricane impact windows. Luxury finishes and 12-foot ceilings throughout. Split floorplan with enormous great room at the center. An underground propane tank supplies the kitchen range, water heater, and summer kitchen. Open kitchen with high-end stainless-steel appliances and large center island. Master bedroom features two large walk-in closets and a master bath with standalone bathtub, dual vanities, and separate shower. Hobby/bonus room off the great room with lots of sunlight. Two A/C zones. Large covered porch with frameless screen. Opportunities to purchase a brand-new home in this subdivision are rare -very few vacant lots left. Palm Beach Country Estates features quiet country living with no HOA, city water, and close proximity to area amenities such as Alton Town Center and Abacoa.

Essential Information

  • MLS® #R11166393
  • Price$2,552,000
  • CAD Dollar$3,497,707
  • UK Pound£1,924,665
  • Euro€2,228,958
  • Bedrooms5
  • Bathrooms5.00
  • Full Baths4
  • Half Baths1
  • Square Footage3,445
  • Year Built2025
  • TypeResidential
  • Sub-TypeSingle Family Residence
  • RestrictionsNo Restrictions
  • StatusActive
  • HOPANo Hopa

Community Information

  • Address7595 155th Place N
  • Area5330
  • SubdivisionPalm Beach Country Estates
  • CityPalm Beach Gardens
  • CountyPalm Beach
  • StateFL
  • Zip Code33418

Amenities

  • ParkingGarage, Attached Garage
  • # of Garages2
  • WaterfrontNone
  • Pets AllowedYes, No Restrictions

Amenities

Jogging Path, Park, Picnic Area, Playground

Utilities

Cable Available, Water Available

Interior

  • HeatingCentral, Zoned
  • CoolingCentral Air, Zoned
  • # of Stories1

Interior Features

Entrance Foyer, High Ceilings, Pantry, Walk-In Closet(s), Bedroom Layout - Split

Appliances

Gas Water Heater, Dryer, Dishwasher, Free-Standing Freezer, Gas Range, Oven, Refrigerator, Water Heater, Washer

Exterior

  • Lot DescriptionCorner Lot, Room for Pool
  • RoofMetal
  • ConstructionCBS

School Information

  • ElementaryMarsh Pointe
  • MiddleIndependence
  • HighWilliam T. Dwyer
  • Office: Berman Realty

Property Location

Please provide a valid email address.

7595 155th Place N on www.w.jupiteroceanfrontcondos.us

Offered at the current list price of $2,552,000, this home for sale at 7595 155th Place N features 5 bedrooms and 5 bathrooms. This real estate listing is located in Palm Beach Country Estates of Palm Beach Gardens, FL 33418 and is approximately 3,445 square feet. 7595 155th Place N is listed under the MLS ID of R11166393 and has been available through www.w.jupiteroceanfrontcondos.us for the Palm Beach Gardens real estate market for 20 days.

Facts About Palm Beach Gardens, FL

Palm Beach Gardens was developed by John D. MacArthur in 1959. His original chosen name for the city was Palm Beach City, but this name was not approved by Florida legislature. Therefore, MacArthur named the city, Palm Beach Gardens.

If you're an avid golfer, visit PGA National Resort & Spa.  The resort has five championship courses that are challenging even for the pros.

There are about 12 golf courses within the Palm Beach Gardens city limits. The Professional Golfer's Association of America has its headquarters office in this city.

Similar Listings to 7595 155th Place N

Photo of Listing #R11131287
  • MLS® #: R11131287
  • 16149 73rd Terrace N
  • Palm Beach Gardens, FL 33418
  • $2,550,000
  • 4 Bed, 3 Bath, 2,469 SqFt
  • Residential
Add as Favorite
Photo of Listing #R10790314
  • MLS® #: R10790314
  • Xxx 76th Trail
  • Palm Beach Gardens, FL 33418
  • $2,499,000
  • 5 Bed, 5 Bath, 4,558 SqFt
  • Residential
Add as Favorite
Photo of Listing #R11141623
  • MLS® #: R11141623
  • 125 Pembroke Drive
  • Palm Beach Gardens, FL 33418
  • $2,500,000
  • 5 Bed, 4 Bath, 3,266 SqFt
  • Residential
Add as Favorite
Photo of Listing #R11127346
  • MLS® #: R11127346
  • 14645 Black Bear Road
  • Palm Beach Gardens, FL 33418
  • $2,298,000
  • 5 Bed, 5 Bath, 3,570 SqFt
  • Residential
Add as Favorite

All listings featuring the BMLS logo are provided by Beaches MLS Inc. Copyright 2026 Beaches MLS. This information is not verified for authenticity or accuracy and is not guaranteed.
© 2026 Beaches Multiple Listing Service, Inc. All rights reserved.

Listing information last updated on March 16th, 2026 at 7:02am CDT.