1. Home
  2. Search Listings
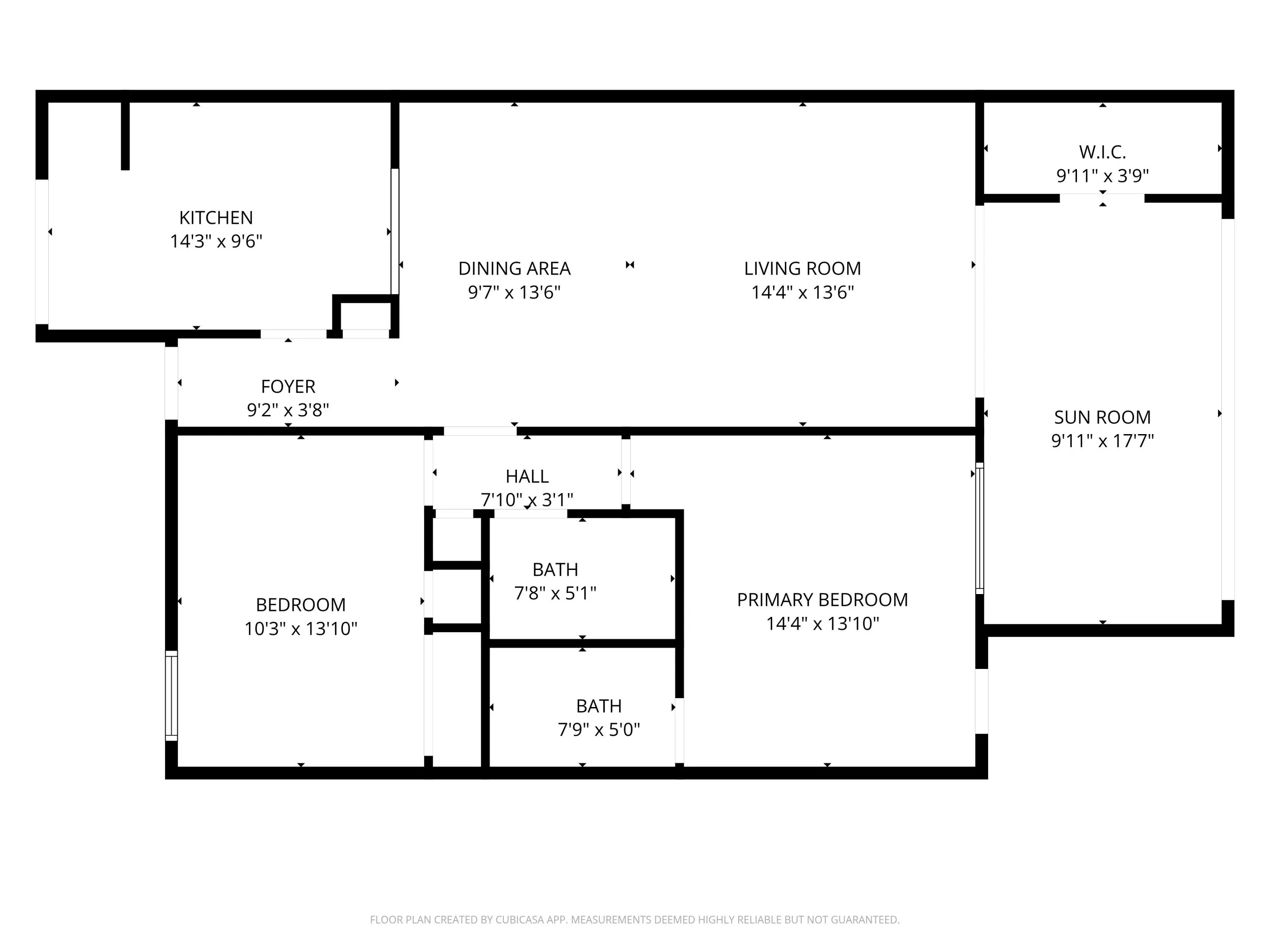
  3. 705 Sunny Pine Way #h Greenacres, FL - 33415
REDUCED
  • MLS® #: RX-11162688
  • 705 Sunny Pine Way #h
  • Greenacres, FL 33415
  • $299,000
  • 2 Beds, 2 Bath, 1,370 SqFt
  • Residential

THIS HOME QUALIFIES FOR A $15K BUYER GRANT. Spacious lakefront corner villa that's truly move-in ready. 2 bedrooms, 2 baths, vaulted ceilings and abundant natural light with flowing wood-look porcelain tile throughout the living areas. The Florida room overlooks the water and large sliders make indoor outdoor living easy. Updated kitchen with granite counters, stainless appliances and brand new washer and dryer. A/C and hot water heater replaced in 2019. Primary suite offers a walk-in closet and private bath. Fenced courtyard, accordion shutters and assigned parking. Community pool, clubhouse and tennis. HOA covers insurance, roof and basic cable. All ages welcome in a peaceful setting,

View Virtual Tour

Essential Information

  • MLS® #RX-11162688
  • Price$299,000
  • CAD Dollar$406,563
  • UK Pound£222,863
  • Euro€257,544
  • HOA Fees488
  • Bedrooms2
  • Bathrooms2.00
  • Full Baths2
  • Square Footage1,370
  • Year Built1984
  • TypeResidential
  • Sub-TypeVilla
  • StyleVilla
  • StatusPrice Change
  • HOPANo Hopa

Restrictions

Buyer Approval, Commercial Vehicles Prohibited

Community Information

  • Address705 Sunny Pine Way #h
  • Area5720
  • CityGreenacres
  • CountyPalm Beach
  • StateFL
  • Zip Code33415

Subdivision

PINE RIDGE NORTH VILLAGE III CONDO

Amenities

  • AmenitiesPool, Tennis
  • ParkingAssigned, Guest
  • ViewLake
  • Is WaterfrontYes
  • WaterfrontLake
  • Pets AllowedYes

Utilities

Cable, Electric, Public Sewer, Public Water

Interior

  • HeatingCentral
  • CoolingCentral
  • # of Stories1
  • Stories1.00

Interior Features

Entry Lvl Lvng Area, Split Bedroom, Volume Ceiling, Walk-in Closet

Appliances

Dishwasher, Dryer, Microwave, Range - Electric, Refrigerator, Storm Shutters, Washer, Water Heater - Elec

Exterior

  • Exterior FeaturesOpen Patio, Shutters
  • WindowsSliding
  • ConstructionCBS

School Information

  • ElementaryCholee Lake Elementary School
  • MiddleOkeeheelee Middle School
  • HighDr. Joaquin Garcia High School
  • Office: Exp Realty Llc

Property Location

Please provide a valid email address.

705 Sunny Pine Way #h on www.w.jupiteroceanfrontcondos.us

Offered at the current list price of $299,000, this home for sale at 705 Sunny Pine Way #h features 2 bedrooms and 2 bathrooms. This real estate listing is located in PINE RIDGE NORTH VILLAGE III CONDO of Greenacres, FL 33415 and is approximately 1,370 square feet. 705 Sunny Pine Way #h is listed under the MLS ID of RX-11162688 and has been available through www.w.jupiteroceanfrontcondos.us for the Greenacres real estate market for 25 days.

Similar Listings to 705 Sunny Pine Way #h

Photo of Listing #RX-11119066
  • MLS® #: RX-11119066
  • 816 Sky Pine Way #g
  • Greenacres, FL 33415
  • $299,000
  • 2 Bed, 2 Bath, 1,370 SqFt
  • Residential
Add as Favorite
Photo of Listing #RX-11161846
  • MLS® #: RX-11161846
  • 1060 Parkside Green Drive #d
  • Greenacres, FL 33415
  • $299,999
  • 2 Bed, 2 Bath, 1,076 SqFt
  • Residential
Add as Favorite
Photo of Listing #RX-11167072
  • MLS® #: RX-11167072
  • 544 Shady Pine Way #a
  • Greenacres, FL 33415
  • $291,000
  • 2 Bed, 2 Bath, 1,370 SqFt
  • Residential
Add as Favorite
Photo of Listing #RX-11117463
  • MLS® #: RX-11117463
  • 612 Sea Pine Way #f
  • Greenacres, FL 33415
  • $264,999
  • 2 Bed, 2 Bath, 1,370 SqFt
  • Residential
Add as Favorite

All listings featuring the BMLS logo are provided by Beaches MLS Inc. Copyright 2026 Beaches MLS. This information is not verified for authenticity or accuracy and is not guaranteed.
© 2026 Beaches Multiple Listing Service, Inc. All rights reserved.

Listing information last updated on March 9th, 2026 at 9:45pm CDT.